Technical Guidance
在生物科技飛速發展的今天,SPF(Specific Pathogen Free)動物實驗室的建設需求日益增長。SPF動物實驗室是保障實驗動物健康、確保實驗結果準確可靠的重要設施。然而,對于許多企業來說,如何選擇一家專業可靠的SPF動物實驗室建設服務商成為了一個難題。本文將為您介紹一家在SPF動物實驗室建設領域具有領先實力的企業——CEIDI西遞,幫助您解決這一難題。
一、CEIDI西遞:專業動物實驗室建設服務商
CEIDI西遞作為一家專業的SPF動物實驗室建設服務商,擁有豐富的行業經驗和強大的技術實力。公司擁有一支由資深專家和工程師組成的團隊,具備多年的SPF動物實驗室設計、建設和運營經驗。此外,CEIDI西遞還引進了國際先進的實驗室設備和技術,確保所建設的SPF動物實驗室符合國際標準,為客戶提供卓越的品質保障。
二、CEIDI西遞的優勢
1. 豐富的行業經驗:CEIDI西遞在SPF動物實驗室建設領域積累了豐富的經驗,已成功為眾多企業提供了優質的實驗室建設服務。
2. 專業的團隊:公司擁有一支資深的專家和工程師團隊,具備多年的SPF動物實驗室設計、建設和運營經驗,能夠為客戶提供專業的技術支持和服務。
3. 國際先進的技術和設備:CEIDI西遞引進國際先進的實驗室設備和技術,確保所建設的SPF動物實驗室符合國際標準,為客戶提供卓越的品質保障。
4. 良好的口碑:CEIDI西遞在SPF動物實驗室建設領域擁有良好的口碑,得到了客戶和行業的廣泛認可。
5. 完善的服務體系:公司建立了完善的服務體系,從實驗室規劃、設計、建設到運營維護,全程跟蹤服務,確保客戶能夠得到及時、周到的支持和服務。

三、CEIDI西遞案例展示
為更直觀地了解CEIDI西遞的實力,我們通過具體案例來進行分析說明。以下是CEIDI西遞近年來成功建設的幾個SPF動物實驗室案例:
1. 生物醫藥研究院SPF動物實驗室:該實驗室主要用于生物醫藥研究和藥物安全性評價。CEIDI西遞憑借豐富的經驗和專業技術,為其設計了高標準的SPF動物實驗室,并成功幫助客戶獲得了國內外相關認證。
2. 某大型制藥企業動物實驗室:該企業需要建立一座大規模的SPF動物實驗室,用于新藥研發和臨床前試驗。CEIDI西遞為其提供了定制化的解決方案,滿足了客戶的特殊需求,并確保了實驗室的高效運營。
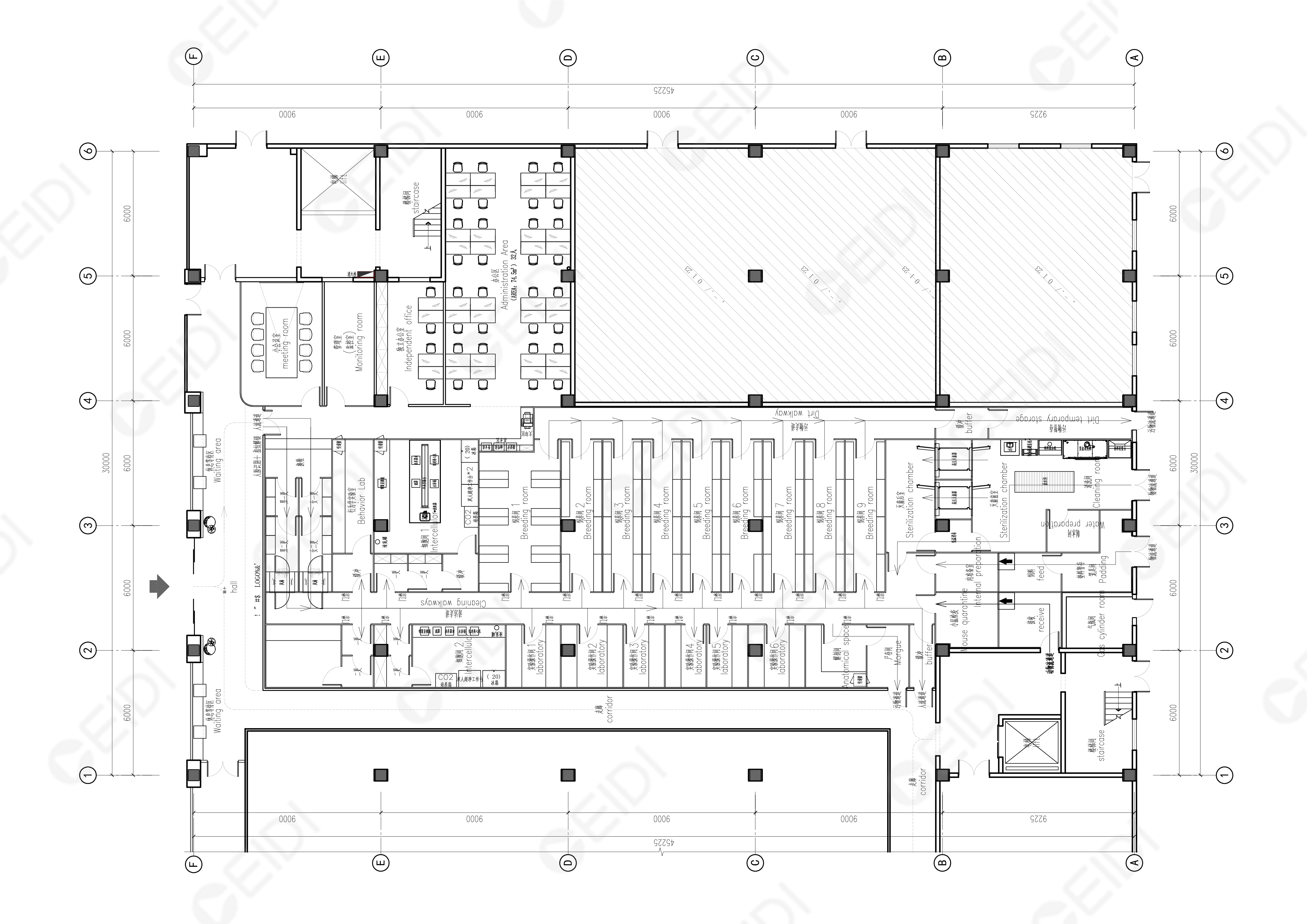
3. 上海某公共實驗平臺:提供專業實驗動物服務的公共實驗平臺,以SPF級大小鼠為主要實驗對象,為客戶提供SPF級別大鼠小鼠代養代購、各種動物實驗外包服務及獸醫咨詢等配套服務。CEIDI西遞根據其需求,為其進行全程EPC建設服務,幫助平臺實現快速運營。
通過以上案例可以看出,CEIDI西遞在SPF動物實驗室建設領域具有卓越的實力和豐富的經驗。無論是大型企業還是科研機構,都能為其提供專業可靠的SPF動物實驗室建設服務。
選擇一家專業可靠的SPF動物實驗室建設服務商是確保實驗室建設成功的重要前提。因此,當您需要建設SPF動物實驗室時,不妨優先考慮選擇CEIDI西遞這樣的專業服務商。它將為您帶來可靠的技術支持和服務保障,助您順利完成實驗室建設和科研工作。
上海市虹橋商務區富力環球中心
Copyright ? 2012-2023 CEIDI西遞 版權所有 滬ICP備11045524號